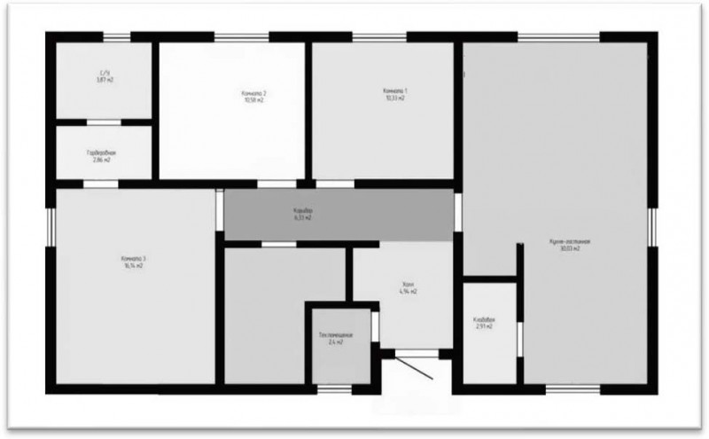
Антарктика 114 м - простор и комфорт для большой семьи Просторный одноэтажный дом «Антарктида» — это современное семейное жилище, где каждый член семьи найдет свое уютное место.
«Антарктида» — это больше чем просто дом. Это пространство, где созданы все условия для счастливой и комфортной жизни большой семьи, где каждый найдет свой уголок для отдыха и творчества.
Комплектации:
ДОМОКОМПЛЕКТ 1 699 000 р.
СТАНДАРТ 5 200 000 р.
КОМФОРТ 7 200 000 р.
КОМФОРТ+ 8 500 000 р.
Выбор местоположения
Мы свяжемся с Вами в течение дня.